El propietari del restaurant El Ventorro de València ha entregat a la jutgessa de Catarroja (l’Horta Sud) que investiga la gestió de la dana la factura, dues fotografies i el plànol del reservat on van dinar el president de la Generalitat en funcions, Carlos Mazón, i la periodista Maribel Vilaplana el dia de les riuades que van deixar 229 víctimes mortals.

Es tracta d’una cambra, amb dos grans finestrals de sostre a terra amb cortines, una taula ovalada al centre amb diverses cadires, una butaca i un moble auxiliar. La dependència té una porta d’accés per la qual, segons va declarar la periodista en la compareixença davant la magistrada, únicament va entrar l’amo del restaurant el 29 d’octubre durant el dinar.

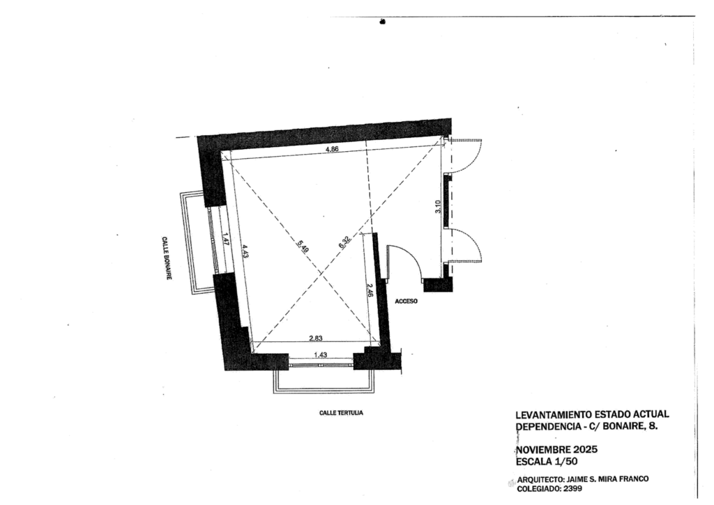
El propietari, davant de la petició de la jutgessa de conèixer les mesures del reservat, ha lliurat a l’òrgan judicial un plànol amb el detall de cada costat de l’estada. El darrer document aportat és la factura del dinar, emès a nom del PP i amb un import per a aquesta taula, la 106, de 165 euros per dos menús concertats.

La instructora va demanar dilluns passat aquesta documentació a l’amo del restaurant, després de la seua declaració com a testimoni del 21 de novembre passat i en sol·licitar-ho diversos lletrats.
En la justificació de la petició, la jutgessa assenyalava que la interlocutòria de 16 d’octubre dl 2025 de l’Audiència de València, en què es va ordenar la presa de declaració com a testimoni de la periodista, el tribunal indicava la “pertinència” de les diligències destinades a aclarir el procés de deliberació i decisió que es va seguir a la reunió del Cecopi.
En aquesta interlocutòria, se subratllava que el president ostenta la condició de màxima autoritat de la Generalitat i president del Consell, i que té atribuïdes per llei funcions directives i de coordinació, de manera que pot impartir instruccions als membres del Consell.
Aquesta resolució de l’Audiència estimava la “pertinència” de la declaració de la periodista partint que la testimoni “hauria pogut escoltar el que el president de la Generalitat diguera en comunicar-se telefònicament amb la llavors consellera de Justícia i Interior”, i investigada a la causa, Salomé Pradas, “o bé comentaris que el president poguera fer arran de tot”.







