Com explica l’alcalde de Meliana, Josep Riera, “en arribar al govern, ens vam trobar amb un expedient molt embolicat i encallat. Durant més d’un any, tant els tècnics municipals com els tècnics de la Conselleria han hagut de treballar per a acostar els criteris i els posicionaments tècnics i fer possible el projecte, que ja ha sigut aprovat pel Servici d’Infraestructura Esportiva de la Conselleria d’Educació, Investigació, Cultura i Esport”. Bàsicament, el treball s’ha centrat a completar els informes de viabilitat del projecte i a ajustar l’obra al pressupost de què es disposa per la dita subvenció del Pla Confiança.
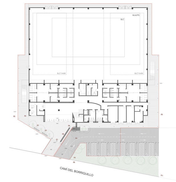
El pressupost de licitació serà d’1.579.079,85 € que, amb l’IVA i els honoraris, suposarà una inversió total d’1.992.606,12 €. Amb esta actuació, es construirà i es dotarà el pavelló per tal que es puga utilitzar d’ací a dos anys, ja que -en paraules- del màxim responsable municpal- “l’expedient ha passat ja al servici de contratació perquè n’inici el procés de licitació, que s’allargarà uns mesos. Després que s’haja adjudicat l’obra, hi ha un període d’execució previst de dihuit mesos”. El pavelló s’ubicarà dins de les instal·lacions del poliesportiu municipal.

Finalment, Riera avança que “a més, tota la zona anirà tenint una transformació urbanística significativa, ja que hi concidiran diversos projectes importants”. Així, a més del pavelló cobert i del conjunt del poliesportiu, allí ja es troba el CEIP El Crist i, tot seguit, hi ha un dels sòls dotacionals educatius previstos en el Pla General d’Ordenació Urbana on podria ubicar-se el centre nou d’educació infantil i primària programat per la Conselleria d’Educació. Tancant tota esta zona clarament educativa i esportiva transcorrerà el futur Anell Verd metropolità. La via verda esdevindrà fonamental per a l’accés a tota esta àrea, des del nucli urbà, amb criteris de mobilitat sostenible .

